Спорткомплекс для любителей мотоциклов хотят создать под Горно-Алтайском. Рендеры

Эскизы универсального спортивного комплекса для занятий мотоспортом
Эскизы универсального спортивного комплекса для занятий мотоспортом Фото: предоставлено "Толку"

На объекте также предлагается создать трассы для снегоходов, лыж, хоккейную коробку и инфраструктуру для других видов спорта

Идею о строительстве универсального спортивного комплекса для занятий мотоспортом в разных дисциплинах планируют воплотить недалеко от Горно-Алтайска. Инициатор проекта Елена Раенко рассказала "Толку" о том, что именно предлагают создать на объекте и зачем.

Для начала стоит отметить, что жители республиканской столицы ежегодно жалуются в соцсетях на мотолюбителей. Горожан не устраивают громкие резкие звуки, то и дело раздающиеся под окнами не только главных, но и второстепенных улиц в любое время дня и ночи, а виновники тому – молодежь, передвигающаяся на мотоциклах, мопедах и прочей подобной технике. Мотоциклисты в свою очередь резонно задают вопрос: если нельзя ездить здесь, то где можно?

Нельзя не упомянуть и то, что МВД по Республике Алтай постоянно говорит о необходимости соблюдения правил дорожного движения, а также о том, что за руль мопедов и мотоциклов можно садиться только по достижении определенного возраста и в некоторых случаях только имея водительские права. Но даже печальная статистика аварий и летальных исходов часто не останавливает гонщиков.

С оглядкой на эти проблемы и была рождена мысль о создании универсального спортивного комплекса для любителей мотоспорта.

Эскизы универсального спортивного комплекса для занятий мотоспортом
Эскизы универсального спортивного комплекса для занятий мотоспортом
Фото: предоставлено "Толку"

"Наша идея в том, что молодежь на мототехнике, не знающая правил дорожного движения и не имеющая понимания о технике безопасности, нужно убрать с проезжей части. Но при этом на данный момент у нас в городе и рядом отсутствует специализированная площадка для мотоспорта, где могли бы заниматься, тренироваться и опытные спортсмены, и любители. Часто мы слышим мнения о том, что мотоциклистам в городе не место, а они в ответ спрашивают – тогда куда нам идти? Молодежь, если это любители, не ищет какие-то тяжелые трассы, обычно им нужен простой вариант проката своей техники, и начинает это делать в черте города, в крайнем случае в садовых товариществах. Соответственно, родители со своей стороны, видя интерес ребенка к технике, задумываются – а куда его можно отправить отрабатывать навыки? Кто с ним будет заниматься? Ведь хочется, чтобы человек-наставник был не просто кто-то там, а имел подходящую квалификацию. А нет ничего подобного, и идти некуда, получается. Мы считаем, что такую площадку можно и нужно создать, и беремся за это", – говорит Елена Раенко.

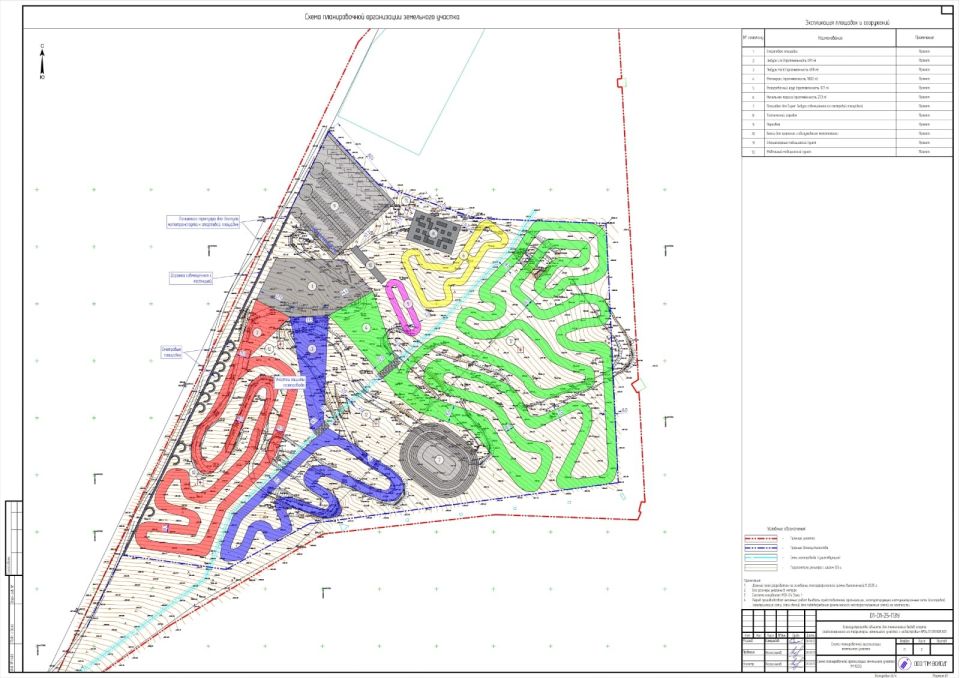
По ее словам, под эти цели рассматривается участок примерно площадью в 10 га, который располагается напротив территории завода железобетонных изделий "Магис" в Майминском районе.

Сама по себе эта территория достаточно сложна в плане того, что здесь множество охранных зон.

Эскизы универсального спортивного комплекса для занятий мотоспортом
Эскизы универсального спортивного комплекса для занятий мотоспортом
Фото: предоставлено "Толку"

"Здесь проходит газовая труба, воздушная линия электропередачи в 110 кВ, сетевые кабели. Мы были вынуждены все это учесть, где-то отступить, где-то предусмотреть дополнительные средства защиты, когда прорабатывали весь проект. Для этих мероприятий имеет значение ширина дорожек, первые повороты, стартовая площадка и прочее", – рассказывает Елена.

Что предполагается создать на территории спорткомплекса? Во-первых, он запланирован в качестве многофункционального. Здесь хотят оборудовать трассы для мотокросса длиной почти в 2 км, лайт эндуро, хард эндуро; трассы для снегоходов, лыж, а также колизей, хоккейную коробку с возможностью проведения "супер эндуро".

Также планируется обустройство нескольких треков, разогревочного круга, трассы для начинающих, а также тактического городка с классами, на территории которого возможно отрабатывать езду в городских условиях.

Кроме того, предполагается и обучение тактической медицине, ориентации на местности, например, в условиях отсутствия связи и других стрессовых ситуациях.

Эскизы универсального спортивного комплекса для занятий мотоспортом
Эскизы универсального спортивного комплекса для занятий мотоспортом
Фото: предоставлено "Толку"

Технику можно будет как брать напрокат, так и привозить свою – парковки запланированы с учетом прицепов. Кроме того, предполагается, что в новом спорткомплексе заработает СТО самообслуживания.

"Трассы для мотокросса мы подводим к прохождению аккредитации, чтобы там было можно проводить масштабные мероприятия, связанные с соревнованиями. Там тоже имеется ряд требований, которые нужно соблюсти, и мы этим занимаемся. Любые соревнования – понятно, что это спонсоры, расходы, бесплатно никто ничего делать не будет, а вот технические требования нередко остаются в стороне, и в них мало кто вникает", – делится Раенко.

Помимо спортивных объектов в будущем спорткомплексе планируется разместить кафе и небольшую гостиницу.

Эскизы универсального спортивного комплекса для занятий мотоспортом
Эскизы универсального спортивного комплекса для занятий мотоспортом
Фото: предоставлено "Толку"

Также проектом предусмотрено обустройство смотровых площадок. Основная лестница будет играть также роль тропы здоровья, а отходящие от нее зоны отдыха со столиками и скамейками для тех, кто решит отдохнуть, вместят порядка 70 человек каждая.

"Не все, может быть, захотят именно кататься, кто-то может просто гулять, обозревать окрестности, в других туристических и не только регионах подобные площадки давно уже не редкость", – говорит Елена.

Что же касается финансовой составляющей, то собеседница отмечает, что на данный момент конкретную сумму назвать не представляется возможным из-за того, что пока, например, не закончен проект капитальных объектов.

Эскизы универсального спортивного комплекса для занятий мотоспортом
Эскизы универсального спортивного комплекса для занятий мотоспортом
Фото: предоставлено "Толку"

"В наших интересах, чтобы все запланированные треки сохранились, ну а относительно размещения капобъектов – либо это будет один инвестор, либо в этой части рассмотрим привлечение второго инвестора. Проектировщикам мы поставили задачу, ну и, кроме прочего, нужно, чтобы это было стилизовано, красиво. И конечно же, мы не отказываемся от помощи государства, так как считаем, что проект классный и нужный", – резюмировала собеседница.

На воплощение идеи в жизнь отведено три года, и текущий уже потрачен на улаживание тонкостей с технической документацией, охранными зонами, согласованиями и внесением корректировок. По словам Елены, сейчас осталось получить добро на земельные работы в администрации Майминского района и на начало апреля 2026 года инициаторы проекта планируют загонять технику на участок.

Вид с Чертова пальца: как выглядит новая смотровая площадка на известной алтайской горе

29 октября в Майме открыли новую общественную территорию – смотровую площадку на горе Чертов палец с прекрасным видом на районный центр

Новости партнеров
Новости партнеров

Лента новостей