В центре Барнаула расселяют огромный квартал ветхого жилья под дома-гиганты. Но дороги и "социалка" критично запаздывают
Крупный район в Барнауле оказался зажат между транзитными улицей Челюскинцев и переулком Ядринцева. Если первая более или менее справляется с пропуском автомобилей, то второй уже стоит в пробке, а горожане жалуются на отсутствие тротуаров. Между тем, эта территория – мощный центр реновации в городе, который уже даже называют Барнаул-сити за акцент на высотках. "Толк" узнал, есть ли шансы, что эта территория не встанет в пробках и получит инфраструктуру.
"Побочка" капитализма
Микрорайон в границах ул. Челюскинцев, пр. Строителей, пер. Ядринцева и ул. Партизанской исторически застроен частным сектором, тут есть и большая промзона. Он стал участком реновации в Барнауле – на месте частных домов строятся жилищные комплексы. Рядом – за "Сити-центром" – развивается еще один застраиваемый микрорайон, и для его жителей близлежащие дороги тоже актуальны.
Здесь по генплану и вслед за покупательским спросом строят новые дома и запланированы соцобъекты. Интерес застройщиков к этой территории растет по мере того, как у города заканчиваются пустые участки под квартальную застройку – остался только один на восемь многоэтажных домов.
В итоге население между Ядринцева и Челюскинцев вырастет колоссально, посчитали разработчики проектов планировок на этот участок. Например, если сейчас между ул. Молодежной и Папанинцев проживает около 1,8 тыс. человек, то после застройки будет уже 7 тыс., сообщали проектировщики на градосовете в 2018 году. А это только треть от намеченной территории реновации в этой части города.
 
        		                    Это не первый такой опыт для Барнаула. В 1970-е годы соседний микрорайон №17 (между Ядринцева и Красноармейским) перестраивали за бюджетный счет: сносили бульдозером все частные дома и проектировали город с новой сеткой дорог и инженерных сетей. Теперь избушки под многоэтажки выкупают частные инвесторы, а вот "социалку" должно спонсировать государство.
И это самая главная проблема нового макрорайона, считает главный архитектор "Алтайгражданпроекта" Евгений Башкиров: чтобы территория была комфортной для жизни, надо много земли под школы, детсады, поликлиники и прочую социальную инфраструктуру. Например, до трех гектаров, чтобы спроектировать полноценную школу со стадионом.
Стоимость сотки, говорят риэлторы, в этой части города варьируется от 600 тыс. рублей до 1,5 млн. То есть по рыночной цене земля только под образовательное учреждение обойдется в минимум 180-450 млн рублей. Это при том, что на строительство одного здания из федерального бюджета для Барнаула выделяют всего около 500 млн. Своих денег на школы в регионе нет.
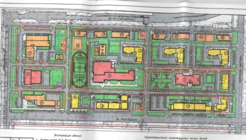
Что запланировали?
Кроме многоэтажек, проектировщики предусмотрели школу, детсад и торговый центр
Для территории в границах ул. Челюскинцев, пр. Строителей, пер. Ядринцева и ул. Партизанской разработано три проекта планировки.
- Квартал "Строитель" между ул. Молодежной и Папанинцев. По периметру и внутри квартала запланированы шесть новых многоэтажных домов на 7 тыс. жителей, школа на 550 мест и детсад на 330.
- Квартал между ул. Папанинцев и Партизанской – всего 32 га на 25 высоток, в том числе в 25 этажей. Здесь предусмотрена школа на 1,1 тыс. мест и два детсада по 240 мест, а еще поликлиника на 300 посещений в смену.
- Квартал между ул. Молодежной и пр. Строителей. Здесь можно разместить семь 16-, 12– и 10-этажных домов и одну 20-этажку. В них должно быть 1,46 тыс. квартир общей площадью 65,5 тыс. кв. метров. Здесь запланирована школа на 550 учащихся, стадион, детский сад и торгово-офисное здание на углу ул. Челюскинцев и пр. Строителей.
За чей счет комфорт?
Проблему с дефицитом школ и детсадов новоселы Ядринцева могут прочувствовать чуть позже. Сейчас для них неприятна перспектива жить бок о бок с вечной пробкой и дорогой, которая не приспособлена для пешеходов.
Накануне депутат Барнаульской городской думы Евгений Носенко рассказал "Толку", что горожане жаловались: здесь нет тротуаров и фонарей. Их попросту негде устроить, потому что дорога идет практически встык к домам. Жители также написали "Толку", что Ядринцева – это больше не переулок в частном секторе, а полноценно загруженная улица в центре города. Ее необходимо расширять до четырех полос, делать тротуары и освещение, ставить светофоры.
"В противном случае как дети будут переходить дорогу по неосвещенным улицам?" – спрашивают они.
На депутатский запрос о перспективе Ядринцева в мэрии ответили, что в бюджете на тротуары и фонари средств до 2023 года не предусмотрено. В пресс-службе мэрии на запрос "Толка" добавили: "мероприятия по реконструкции дороги капиталоемкие и требуют значительного финансирования".
 
        		                    Поэтому пока все остается на откуп застройщикам. Хотят строить дом – пусть расселяют рядом с ним участки и под будущую дорогу. Так сейчас и делают, передавая их затем в собственность города. Но не все удастся решить за счет строителей.
Во-первых, такой способ формирования места под застройку долгий. У частных инвесторов на переговоры с собственниками уходят годы, а расселять, по данным сервиса 2ГИС, надо около 30 домов. Во-вторых, не все участки интересны застройщикам именно сейчас и у дороги.
И в-третьих, некоторые невозможно купить. Как, например, площадку детского сада на углу Партизанской и Ядринцева. А между тем дошкольное учреждение нужно оттуда убирать, так как оно не может размещаться на магистральной улице, говорили на одном из градосоветов.
Архитектор Евгений Башкиров добавляет: чтобы реконструировать дорогу на Ядринцева, необходимо расселить все участки от пр. Строителей до ул. Партизанской и даже ниже. Только после этого можно начинать работу.
"Действительно, сейчас этот переулок достаточно напряжен. Две полосы не справляются с потоком автомобилей, поэтому в перспективе он должна стать многополосной магистралью", – добавляет Башкиров.
Нет простых рецептов
Градостроители не возлагают на расширение дорожного полотна Ядринцева все надежды решить проблемы с пробками. Потому что, говорит Сергей Павлов, доцента кафедры "Организация и безопасность движения" АлтГТУ, концентрация населения в этой части города – не причина заторов. Виной всему транзит из центра в спальные районы, который упирается в загруженные пр. Строителей и Павловский тракт.
"В основном новые кварталы строятся в районе Попова и Ускова, в результате чего возрастает нагрузка на Павловский тракт. А кварталы вдоль Ядринцева расположены рядом с центром города, и они будут создавать нагрузку не на основные проспекты – Строителей, Ленина и Красноармейский, – а на перпендикулярные улицы", – говорит эксперт.
 
        		                    Также следует решить проблему поворота со Строителей на Челюскинцев, увеличить пропускную способность других перекрестков, подумать об установке новых светофоров и принять другие меры.
По мнению Ксении Белоусовой, директор компании "Алгоритм" (возводит ЖК "Джаз" на ул. Молодежной, – прим. ред.), в Барнауле надо уходить от концепции спальных и административных районов. Также следует создавать дополнительные транспортные связи, ведущие к местам притяжения людей, думать над регулированием светофоров в зависимости от времени суток и интенсивности движения.
Руководитель проектной компании "АрхИ-Групп" Андрей Суртаев хотел бы видеть в Барнауле программу "Перекрестки". Ее задача – выделить самые проблемные места в городе и наладить там движение – где-то за счет регулирования работы светофоров, где-то за счет дополнительных полос.
А Башкиров напомнил, что в очередной версии генплана сохранилась идея строительства тоннеля под ЖД-мостом со стороны пр. Красноармейского. Он, по мнению архитектора, решит множество вопросов с пробками в центре города.
30 млн и два года до счастья
Эксперты едины в том, что городу необходим комплексный план развития дорожной сети. Такой, который бы "посмотрел" не только на проблемные Ядринцева или Челюскинцев, а учел всю ситуацию в городе.
"Я, например, не уверен, что надо расширять дорожное полотно под ЖД-мостом на пр. Строителей, чтобы убирать пробку с Ядринцева. Сейчас это буфер для трафика в центр. Если туда пойдет больше машин, то встанет вопрос с парковками. Около "политеха" уже негде оставить автомобиль, – говорит Павлов. – То есть разгружая один участок, мы можем создать проблему на другом. Каждое решение нужно просчитывать и обосновывать".
 
        		                    По его словам, для создания понятной и работающей программы развития уличной сети в городе нужно финансирование около 30 млн рублей и два года на исследования и проработку решений.
Пока же Барнаул живет в правовом вакууме. Имеющийся в администрации города проект развития улично-дорожной сети сделан с опорой на старый генеральный план 2010 года. После принятия нового в 2019 году должен был появиться другой документ, но его нет и из-за этого уже возникают споры.
Так, в феврале на градосовете решался вопрос с реконструкцией Павловском тракте. Градостроителям пришлось принимать сложное решение – дать бизнесу развиваться на месте будущей дороги, которая обозначена в новом генплане, или нет? (Решение отложили, – прим. ред.).
Но и это не все. Начальник комитета по строительству, архитектуре и развитию Барнаула Антон Воробьев подчеркивал относительно предстоящей реконструкции Павловского тракта: нужен проект и финансирование. Также он нужен на ул. Ядринцева и Челюскинцев, но их нет.
Зато есть планы по вводу жилья в Алтайском крае, которые спускает федеральный центр. К 2028 году в регионе должны вводить почти 1 млн кв. метров жилья. Большую часть многоэтажных домов построят именно в Барнауле.
- Квартал "Строитель" между ул. Молодежной и Папанинцев. По периметру и внутри квартала запланированы шесть новых многоэтажных домов на 7 тыс. жителей, школа на 550 мест и детсад на 330.
- Квартал между ул. Папанинцев и Партизанской – всего 32 га на 25 высоток, в том числе в 25 этажей. Здесь предусмотрена школа на 1,1 тыс. мест и два детсада по 240 мест, а еще поликлиника на 300 посещений в смену.
- Квартал между ул. Молодежной и пр. Строителей. Здесь можно разместить семь 16-, 12– и 10-этажных домов и одну 20-этажку. В них должно быть 1,46 тыс. квартир общей площадью 65,5 тыс. кв. метров. Здесь запланирована школа на 550 учащихся, стадион, детский сад и торгово-офисное здание на углу ул. Челюскинцев и пр. Строителей.
 
                     
                                                                                         
	                    	                 
	                    	                 
                                                    
 
                                                    
 
                                                    
 
                                                    
 
                                                    
 
                                                    
Наивные до сих пор уверены, что расширение проезжей части спасёт от пробок? Удачи вам, и счастливого будущего в высотных человейниках...