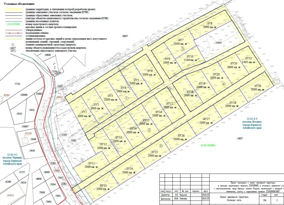
Территория, где может образоваться поселок на 29 домов и пять кварталов, расположена в глубине сельского треугольника – между пригородными поселками Черницк, Ягодное и Мохнатушка
Ближайший пригород Барнаула продолжает развиваться. Причем в сторону Черницкого кладбища. Участок для очередной порции малоэтажных домов нашли в поселке Ягодном, у границы с Черницком. На территории в несколько гектаров планируют построить 29 домов, рассчитанных на семьи из пяти человек. Не исключено, что в будущем здесь появится уголок сельской жизни с городским комфортом для многодетных семей. Подробности читайте в материале "Толка".
Дома, дороги, тротуары
Площадь участка, о котором идет речь, составляет 7,2 гектара. В его границах планируют построить 29 частных домов не более трех этажей.

Территорию разделят на пять кварталов. В границах каждого из них планируется возвести коттеджи высотой не более трех метров и с благоустроенной территорией. Фасады зданий сориентируют на красные линии улиц с соблюдением всех нормативных отступов.
Эти и многие другие нюансы описаны в проекте межевания и планировки территории. Многостраничный документ подготовили в компании "Агростройинвест". Работы, которые включали еще и инженерные изыскания, специалисты провели по заказу 29 заявителей. Для каждого из них "нарезали" участки под будущее строительство. Площадь бОльшей части из них составляет 2 тыс. кв. метров, размер двух наделов – 1,4 тыс. кв. метров и 1,5 тыс. кв. метров.
Кстати, помимо частных домов в границах участка запроектировали дороги, проезды и въезд со стороны Черницкого шоссе. В границах участка заложены и территории общего пользования – это участки, "занятые улицами и проездами", сказано в документе. Причем систему улиц и проездов представят дороги местного значения, которые обеспечат доступ к каждому домовладению.
Ширина въезда и выезда из поселка на магистральную улицу (Черницкий тракт) составит 12 метров, габариты других дорог – 10 метров. Вдоль каждой из них заложены тротуары от одного до полутора метров и озеленение. Предполагается и устройство разворотных площадок для спецтехники.
Гектары для многодетных
Предполагается, что в будущем поселке поселятся минимум 145 жителей. То есть расчеты велись исходя из того, что каждая семья включает не менее пяти человек.
В описательной части проекта также сказано, что при подготовке документа разработчики руководствовались частью 3 статьи 3 Закона Алтайского края от 9 ноября 2015 года N 98-ЗС ("О бесплатном предоставлении в собственность земельных участков"). Вот что говорится в тексте:
"Право на бесплатное предоставление однократно в собственность земельных участков для индивидуального жилищного строительства или ведения личного подсобного хозяйства имеют граждане, имеющие трех и более детей".
Очевидно, что найденную территорию планируют использовать для строительства домов и коттеджей для многодетных семей. И каждый из заявителей является представителем этой льготной категории граждан.
В настоящее время проект проходит стадию общественных обсуждений. Добро на подготовку проекта, который должен пройти эту обязательную процедуру, дала администрация Барнаула. Соответствующее постановление было подписано чуть больше года назад – 1 апреля 2024-го.
Дыхание природы и городские бонусы

Что еще известно об участке? Он неправильной прямоугольной формы. Судя по планам, схемам и данным Публичной кадастровой карты, из этого земельного прямоугольника уже вырезаны два куска площадью 4,2 тыс. кв. метров и 5 тыс. кв. метров. Тот, что поменьше (ул. Светлая, 1), находится в частной собственности и также предполагает возведение частного дома. Участок побольше предназначен для сельхознужд.
Пока земля для многодетных семей находится в государственной или муниципальной собственности, сказано в текстовой части проекта. Возможно, впоследствии, если процедура общественных обсуждений пройдет без сюрпризов, ее передадут в собственность заявителей-льготников для будущего строительства.
Место люди нашли довольно перспективное. Участок расположен у западной окраины поселка Ягодного – между Черницком и поселком Мохнатушки и примыкает к Черницкому шоссе в районе пересечения с улицами Черницкая Заимка и Крестьянская. Слева от территории находится частный сектор, справа раскинулись огромные угодья по улице Сиреневой, 3. В настоящее время они находятся в частной собственности и пустуют. На севере простирается зеленый массив, за которым и разместилось Черницкое кладбище.
Получается, что с одной стороны участок – это уголок почти нетронутой природы, с другой – это территория ближайшего пригорода Барнаула со всеми ее преимуществами. В районе будущей застройки уже сложилась минимально необходимая инфраструктура: школы № 91 (в поселке Центральном) и № 95 (в Черницке), магазины, а также магистраль, связывающая поселковую часть с центром города и не только.
Напомним, ранее "Толк" писал о другом коттеджном поселке, который появится в этой части города. Его также планируют построить рядом с Черницком, но через дорогу – в поселке Центральном, напротив микрорайона Марьина Роща. Площадь территории составляет более 53 га. По предварительным подсчетам, поселок сможет вместить около 400 или даже 500 домовладений.